Forum

Usa il software con l'aiuto delle discussioni condivise con la community dei clienti

User_232417

Balconi ortogonali all'orditura del solaio

User_232417 2016-08-30 21:48:14


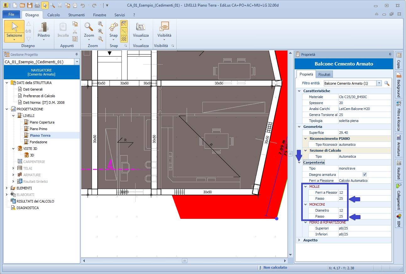
Desidero conoscere per quale motivo l'armatura dei balconi ortogonali all'orditura dei solai, viene sempre proposta con molle disposte ogni 25 cm. e con rete inferiore e superiore. Forse viene considerato a soletta piena? Cosa bisogna fare per ottenere direttamente dal programma un'armatura costituita da molle e monconi ad interasse i=50 cm. prolungati oltre la trave inserendo lo squadro nel 2° e/o 3° travetto? - Grazie

AntonioDL

AntonioDL 2016-08-31 09:13:19


Occorre selezionare il balcone e modificare, nelle proprietà del balcone, sezione Carpenteria, le opzioni relative al passo dell'armatura (molle e monconi).
Clicca QUI per vedere un'immagine esplicativa.

Al momento non è possibile ottenere i ferri del balcone prolungati automaticamente all'interno del solaio. E' tuttavia possibile modificare manualmente l'armatura direttamente in carpenteria come illustrato nel seguente topic --> Modifica Ferri per un balcone in c.a.

enzosaraceni

enzosaraceni 2020-01-13 17:15:20


ma se io ho un balcone come da disegno allegato, e voglio che i travetti e le armature del balcone escano dalla trave 30x50 anzichè da quella 30x25, (visto che di default mi disegna un balcone ordito orizzontalmente anziché verticalmente) come devo fare??? la torsione del balcone su quale trave si genera??

7795_1578931994_cattura3.rar

AntonioDL

AntonioDL 2020-01-13 18:56:04


ma se io ho un balcone come da disegno allegato, e voglio che i travetti e le armature del balcone escano dalla trave 30x50 anzichè da quella 30x25, (visto che di default mi disegna un balcone ordito orizzontalmente anziché verticalmente) come devo fare??? la torsione del balcone su quale trave si genera??

7795_1578931994_cattura3.rar
enzosaraceni


Nel suo caso, la torsione (i carichi in generale che il balcone scarica) vengono trasferiti sia alla trave 30x25 che 30x50. Se vuole trasferire il carico solo ad una delle due travi, dovrebbe disegnare il balcone che inizia e termina su quella trave, mantenendolo staccato (basta anche 1 cm) dalla trave su cui non vuole tramettere i carichi.

L'orditura (la direzione dei ferri/travetti) del balcone può essere modificata. Basta selezionare il balcone e cambiare, nelle proprietà a destra, il campo Tipo di Sezione di Calcolo da Automatica ad Utente. A questo punto, è possibile selezionare il simbolo dell'orditura del balcone e spostarne la posizione.
Clicca QUI per vedere un'immagine esplicativa. 

User_688273

User_688273 2020-12-01 11:36:52


Buongiorno, non capisco come mai nella carpenteria non vengono inserite le molle del balcone e non ve ne è traccia nemmeno nella sezione carpenteria delle proprietà del balcone. Grazie

Emiliano

Emiliano 2020-12-01 11:45:21


Buongiorno, non capisco come mai nella carpenteria non vengono inserite le molle del balcone e non ve ne è traccia nemmeno nella sezione carpenteria delle proprietà del balcone. Grazie
User_688273



L'opzione è presente solo per i balconi in CA, controlli che siano tali e non in acciaio o materiale generico.

User_688273

User_688273 2020-12-01 15:53:58


Perfetto. In pratica il mio è un cornicione, quindi impostato a coronamento del solaio. Le parti in prolungamento dei solai sono ok. In quelle ortogonali il programma una volta eseguito il calcolo completo non mi va a mettere le molle, le quali sono presenti invece se faccio il solo calcolo della carpenteria.

AntonioDL

AntonioDL 2020-12-01 16:03:36


Perfetto. In pratica il mio è un cornicione, quindi impostato a coronamento del solaio. Le parti in prolungamento dei solai sono ok. In quelle ortogonali il programma una volta eseguito il calcolo completo non mi va a mettere le molle, le quali sono presenti invece se faccio il solo calcolo della carpenteria.
User_688273

Se non ritrova più il disegno delle molle in carpenteria è perché quel balcone (o comunque l'area da esso delimitata) risulta "tagliato" da una sezione di calcolo del solaio.
Forse è più opportuno disegnare un balcone per ogni lato della "gronda" della sua copertura, in modo che le sezioni di calcolo del solaio non interessino anche lati in cui il balcone non è in continuità al solaio.