Forum

Usa il software con l'aiuto delle discussioni condivise con la community dei clienti

User_199282

Fatal Error [12003] - [12004] - [12005] - [12006]

User_199282 2015-12-28 20:19:14


Buonasera,
volevo chiedervi come agire per risolvere gli errori delle seguenti Verifiche di Legge:
- Fatal Error [12003] Indice di prestazione energetica per il riscaldamento, EPH,nd
- Fatal Error [12004] Indice di prestazione energetica per il raffrescamento, EPC,nd
- Fatal Error [12005] Indice di prestazione energetica globale
- Fatal Error [12006] Efficienza media stagionale dell'impianto di riscaldamento

Grazie Mille

Antonio

Antonio 2015-12-29 10:10:51


Fatal Error [12003] Indice di prestazione energetica per il riscaldamento, EPH,nd
Tenendo conto che tale indice è direttamente riferito alla prestazione dell'involucro dell'edificio reale che dev'essere inferiore a quella dell'edificio di riferimento, per soddisfare la verifica è necessario ridurre le trasmittanze termiche delle superfici di scambio (opache e trasparenti).

Fatal Error [12004] Indice di prestazione energetica per il raffrescamento, EPC,nd
forum.acca.it/it/termus/id13822/fatal-error-12004-indice-di-prestazione-energetica-per-il-raffrescamento-epc-nd.html

Fatal Error [12005] Indice di prestazione energetica globale
La verifica riguarda la prestazione energetica globale dell'edificio (variabile: EPgl,tot) che deve risultare inferiore a quella dell'edificio di riferimento.
Per poter soddisfare la verifica è necessario ridurre le trasmittanze termiche delle superfici di scambio (opache e trasparenti) e/o adottare sottosistemi di impianto più efficienti.

Fatal Error [12006] Efficienza media stagionale dell'impianto di riscaldamento
E' opportuno valutare che per tutti i sottosistemi di impianto (generazione, distribuzione, regolazione, emissione) siano state adottate soluzioni efficienti. Ove uno dei sottosistemi non presenti prestazioni sufficienti intervenire di conseguenza.

User_320530

User_320530 2016-05-06 13:13:23


Buongiorno,
riguardo l'errore '12006 'pur intervenendo su tutti i sottosistemi, non riesco a risolvere.
E' possibile sapere esattamente in quale dei sottosistemi intervenire?

Nel mio caso si tratta di impianto con pompa di calore invertibile.

grazie

Antonio

Antonio 2016-05-06 16:46:11


Buongiorno,
riguardo l'errore '12006 'pur intervenendo su tutti i sottosistemi, non riesco a risolvere.
E' possibile sapere esattamente in quale dei sottosistemi intervenire?

Nel mio caso si tratta di impianto con pompa di calore invertibile.

grazie
User_320530

Essendo già intervenuto (senza soluzione) posso ritenere che i sottosistemi siano stati effettivamente individuati anche perché direttamente indicati nella precedente risposta.

Magari valuti anche le indicazioni contenute nella seguente discussione:
forum.acca.it/it/termus/id30399/come-sono-calcolate-le-efficienze-medie-stagionali-degli-impianti-etagh-etagw-etagc.html

User_320530

User_320530 2016-05-30 11:21:42


Buongiorno,
riguardo l'errore '12003' per l'indice di prestazione energetica per il riscaldamento, il mio valore di Eph,nd è 18,0545 kWh/m2anno, inferiore, come dice la legge, rispetto a quello dell'edificio di riferimento che ha valore 21,4087 kWh/m2anno, quindi perchè continua a considerare l'errore?

Inoltre, le trasmittanze degli elementi sia opachi che trasparenti sono molto al di sotto dei limiti di legge (il che dovrebbe già bastare a soddisfare la verifica), quindi ridurli mi sembra davvero difficile!

Antonio

Antonio 2016-05-30 12:44:28


Buongiorno,
riguardo l'errore '12003' per l'indice di prestazione energetica per il riscaldamento, il mio valore di Eph,nd è 18,0545 kWh/m2anno, inferiore, come dice la legge, rispetto a quello dell'edificio di riferimento che ha valore 21,4087 kWh/m2anno, quindi perchè continua a considerare l'errore?

Inoltre, le trasmittanze degli elementi sia opachi che trasparenti sono molto al di sotto dei limiti di legge (il che dovrebbe già bastare a soddisfare la verifica), quindi ridurli mi sembra davvero difficile!
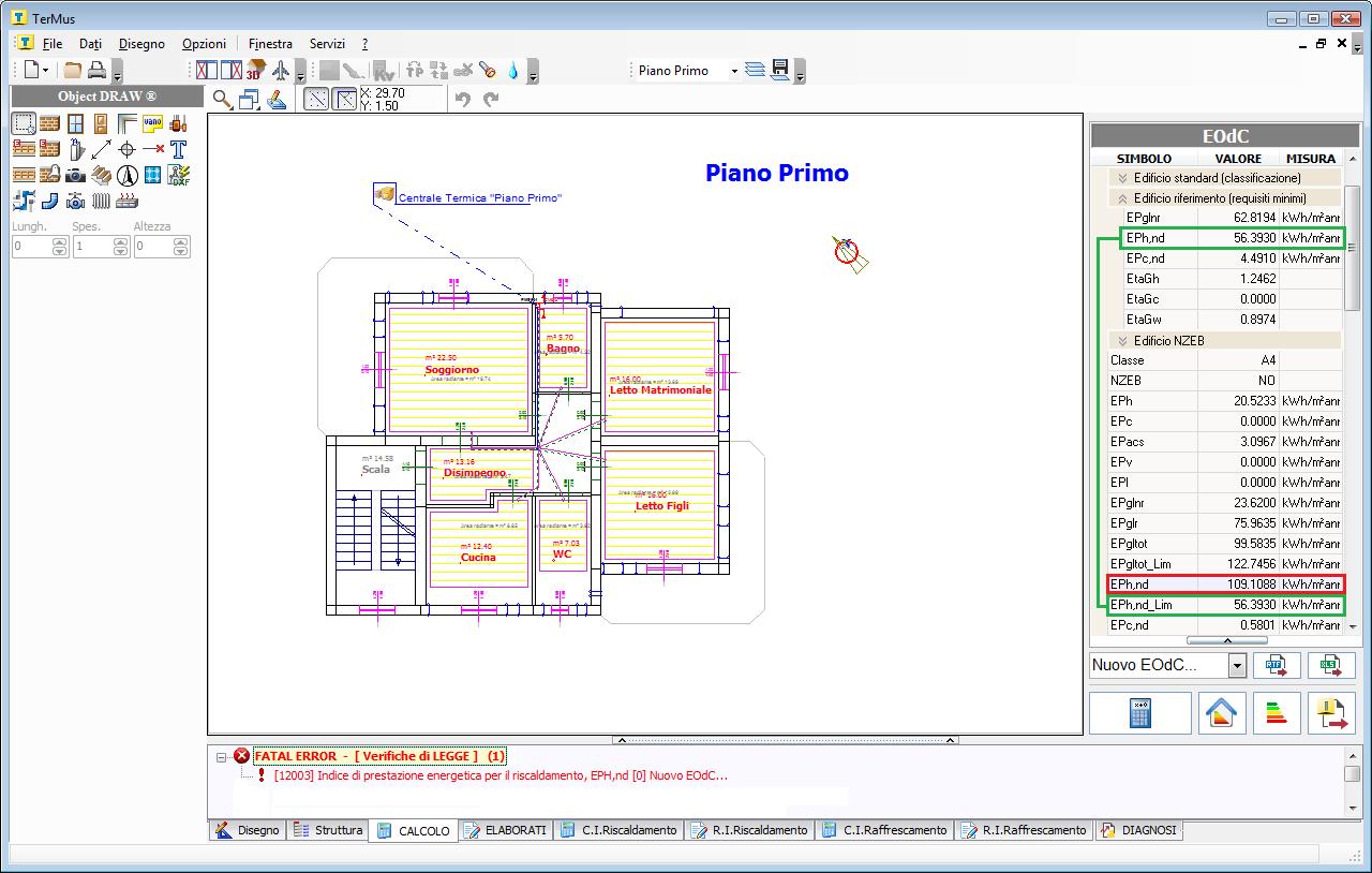
User_320530

La presenza della Verifica di Legge di cui al messaggio 'Fatal Error [12003]' implica assolutamente il fatto che EPh,nd > EPh,nd_Lim.
Il messaggio appare solo in tale condizione.

Clicca QUI per vedere un'immagine esplicativa

NOTA: verifichi inoltre che, se in presenza di più EOdC, il messaggio non faccia riferimento ad un EOdC diverso da quello selezionato e del quale ha rilevato i risultati di calcolo.

Ferdinando

Ferdinando 2017-03-14 12:07:54


Riguardo l'errore 12006.
Volevo inserire una pompa di calore elettrica per la produzione di calore e ACS integrata da un impianto solare termico. Ma non c'è verso di farla digerire al programma. Se invece inserisco una caldaia a metano tutto fila liscio. Come faccio a inserire la pompa di calore elettrica intervenendo sugli impianti? Allego una foto della distribuzione.
Grazie in anticipo e scusate ma non so proprio dove sbattere la testa.
394020_1489489665_impianto.jpg

Antonio

Antonio 2017-03-16 12:34:44


Riguardo l'errore 12006.
Volevo inserire una pompa di calore elettrica per la produzione di calore e ACS integrata da un impianto solare termico. Ma non c'è verso di farla digerire al programma. Se invece inserisco una caldaia a metano tutto fila liscio. Come faccio a inserire la pompa di calore elettrica intervenendo sugli impianti? Allego una foto della distribuzione.
Grazie in anticipo e scusate ma non so proprio dove sbattere la testa.
394020_1489489665_impianto.jpg
Ferdinando

L'impianto mostrato nell'immagine allegata è del tipo idronico pertanto la pompa di calore da definire deve essere con tipologia 'Pompa di Calore (UNI/TS 11300-4)' con fluido termovettore 'acqua'. Definita la macchina in tal modo essa sarà normalmente associabile all'impianto idronico.

Chiaramente la risposta che è possibile fornire è generica e basata sulle sole informazioni desumibili dall'immagine allegata, stante l'assenza di informazioni sul tipo di P.d.C. definita.

Qualora riscontri ancora difficoltà di associazione della macchina all'impianto, è opportuno che contatti direttamente il servizio AmiCus di cui risulta sottoscrittore, quando può effettuare verifiche sul progetto.

User_268986

User_268986 2017-04-20 18:08:25


Salve,
mi servirebbe un consiglio su come eliminare gli errori 12003 e 12005 sul mio progetto.
Non so più su cosa agire per risolvere il problema
Grazie
FATAL ERROR 12005: Indice di prestazione energetica globale
FATAL ERROR 12003: Indice di prestazione energetica per il riscaldamento, EPH,nd

francesco.s

francesco.s 2017-04-21 10:57:47


Salve,
mi servirebbe un consiglio su come eliminare gli errori 12003 e 12005 sul mio progetto.
Non so più su cosa agire per risolvere il problema
Grazie
FATAL ERROR 12005: Indice di prestazione energetica globale
FATAL ERROR 12003: Indice di prestazione energetica per il riscaldamento, EPH,nd
User_268986


La seconda verifica (FATAL ERROR 12003: Indice di prestazione energetica per il riscaldamento, EPH,nd) è relativa solo all'involucro e sarà risolta isolando maggiormente lo stesso, come indicato nel 'post' principale.
La prima segnalazione (FATAL ERROR 12005: Indice di prestazione energetica globale), è strettamente legata alla seconda verifica e presumibimente, una volta risolta (EPh,nd) anche l'EPgl rientrerà sotto i valori limiti.

User_166990

User_166990 2019-08-26 16:32:02


Fatal Error [12006] Efficienza media stagionale dell'impianto di riscaldamento
E' opportuno valutare che per tutti i sottosistemi di impianto (generazione, distribuzione, regolazione, emissione) siano state adottate soluzioni efficienti. Ove uno dei sottosistemi non presenti prestazioni sufficienti intervenire di conseguenza

POTREI SAPERE DOVE VEDO I VALORI COINVOLTI NELL'ERRORE 12006, RELATIVI A generazione, distribuzione, regolazione, emissione, IN MODO DA PROVARE AD INTERVENIRE IN MANIERA CHIRURGICA

Antonio

Antonio 2019-08-27 09:20:46


Fatal Error [12006] Efficienza media stagionale dell'impianto di riscaldamento
E' opportuno valutare che per tutti i sottosistemi di impianto (generazione, distribuzione, regolazione, emissione) siano state adottate soluzioni efficienti. Ove uno dei sottosistemi non presenti prestazioni sufficienti intervenire di conseguenza

POTREI SAPERE DOVE VEDO I VALORI COINVOLTI NELL'ERRORE 12006, RELATIVI A generazione, distribuzione, regolazione, emissione, IN MODO DA PROVARE AD INTERVENIRE IN MANIERA CHIRURGICA
User_166990

Nella seguente discussione del Forum:
Come sono calcolate le efficienze medie stagionali degli impianti (EtaGh, EtaGw, EtaGc)? trova i chiarimenti in merito ai valori oggi in uso per il calcolo dell'efficienza media stagionale degli impianti:

In particolare per quanto riguarda QPh va detto che in esso confluiscono tutti i consumi e perdite degli impianti (rinnovabili e non).
Verifichi innanzitutto quale è il carico termico di progetto dell'edificio (variabile Qp) in maniera da valutare se è la macchina/generatore ad essere sovradimensionata per il servizio (condizione questa che determina alte perdite di generazione).
Selezionando la Centrale Termica inoltre, aprendo il raggruppamento dei Risultati di Calcolo dell'impianto di Riscaldamento, nel raggruppamento Annuali, troverà le perdite restituite dagli altri sottosistemi e potrà valutare se uno o più valori risulta eccessivo quindi risulta opportuno agire per ridurlo.
In particolare:
- la variabile QlDh rappresenta le Perdite per Distribuzione
- la variabile QlEh rappresenta le Perdite per Emissione
- la variabile QlRh rappresenta le Perdite per Regolazione
- la variabile QlAh rappresenta le Perdite di Accumulo (chiaramente se c'è un accumulo)

User_339170

User_339170 2020-01-06 17:42:45


Salve, avendo un QPh (facendo un rapporto) di 10 rispetto a un Qh_rif di 3,75 come si deve intervenire sulla produzione di energia?

Antonio

Antonio 2020-01-07 11:21:18


Salve, avendo un QPh (facendo un rapporto) di 10 rispetto a un Qh_rif di 3,75 come si deve intervenire sulla produzione di energia?
User_339170

In assenza di dati dettaglio (per questo la invito a contattare direttamente i tecnici del servizio Assistenza - 0827/601631 - dal Lunedì al Venerdì dalle 9.00 alle 13.00) un fabbisogno di energia primaria così elevato rispetto a quello di energia utile può dipendere:
a) da un significativo sovradimensionamento dell'impianto rispetto a quanto l'immobile richiede energeticamente
b) la definizione in modo errato della struttura del generatore o l'inserimento di dati anomali (generalmente consumi elettrici) nella rete di distribuzione per riscaldamento.