Forum

Usa il software con l'aiuto delle discussioni condivise con la community dei clienti

User_471664

Ventilazione Naturale e Ventilazione Meccanica

User_471664 2015-01-14 11:46:17


Buongiorno, avrei bisogno di un chiarimento.
Nel caso di edifici non residenziali con sistemi di ventilazione meccanica e/o UTA, nel definire le zone termiche servite dalla ventilazione meccanica o UTA come va impostata la schermata relativa alla ventilazione?
In tale caso occorre NON spuntare la voce relativa a valutazione su progetto o standard?
Il software considera in automatico il fabbisogno energetico per la ventilazione meccanica prescindendo da quella naturale?
Vi ringrazio per l'attenzione e il tempo dedicato.

Antonio

Antonio 2015-01-14 17:04:35


Nella pagina Ventilazione della Struttura della Zona, occorre sempre specificare i dati per stimare il volume d’aria di rinnovo dovuto alla Ventilazione Naturale.

La disattivazione del check Valutazione di progetto o standard non comporta in automatico il passaggio alla Ventilazione Meccanica ma consente al tecnico di inserire liberamente unità di misura e numero di ricambi, in ogni caso riferiti alla Ventilazione Naturale.

Per poter descrivere un sistema di Ventilazione Meccanica bisogna aggiungere fra gli impianti in Centrale Termica una delle seguenti tipologie:
- Riscaldamento con fluido termovettore ARIA
- Riscaldamento e Raffrescamento con fluido termovettore ARIA
- Ventilazione (qualunque tipologia tranne quella Raffrescata)

Nella finestra Distribuzione impianto basterà selezionare:
1. l'etichetta UTA e scegliere come Utilizzo l'opzione CLIMATIZZAZIONE e VENTILAZIONE;
2. l'etichetta della Zona assegnata alla rete di distribuzione e descrivere le caratteristiche del sistema di Ventilazione Meccanica nella specifica sezione.

Clicca il link per vedere un'immagine esplicativa
VentilazioneMeccanica.jpg

Qualora l'impianto fosse dotato di Recuperatore di calore sempre nella finestra Distribuzione impianto basterà selezionare l'etichetta UTA e scegliere come Tipo Impianto l'opzione IMMISSIONE e ESTRAZIONE per attivare la sezione Recuperatore e definirne tipologia ed efficienza.

Clicca il link per vedere un'immagine esplicativa
RecuperatoreCalore.jpg

User_471664

User_471664 2015-01-14 19:19:55


Grazie per la tempestiva e dettagliata risposta. Un ulteriore dubbio:
Nella finestra VENTILAZIONE MECCANICA, nella sezione UTA DELL'IMPIANTO, non conoscendo la portata di ventilazione da inserire, se lasciassi il valore di default (valore di default pari a 0.01) il software riconoscerebbe in automatico quella naturale e/o di riferimento della zona termica (di progetto o inserita dal tecnico, come chiarita in precedenza) Oppure considera 0.01?
Grazie nuovamente

Antonio

Antonio 2015-01-15 09:39:48


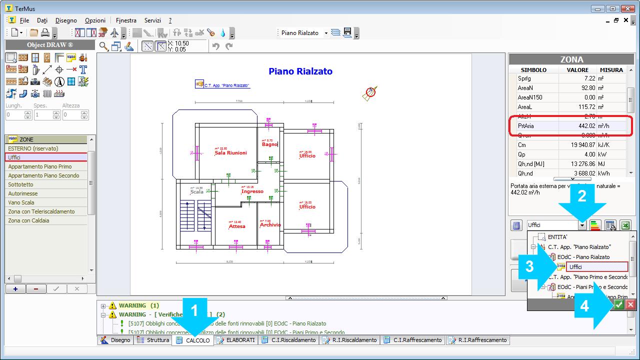
La Portata Aria di immissione trattandosi di dato di progetto va inserita autonomamente.

Da tener presente che il valore della Portata Aria di immissione del sistema di Ventilazione Meccanica deve essere SUPERIORE a quello della portata di ricambio per Ventilazione Naturale affinché il calcolo della norma ne tenga conto.
In sostanza vale nella determinazione della prestazione il ricambio prevalente.

NOTA!!!
Qualora non fosse noto il valore da adottare, si possono utilizzare a riferimento i ricambi d’aria secondo la UNI 10339, valutati dal programma per la Ventilazione Naturale. La variabile (PrtAria) è consultabile nella finestra dei Risultati di Calcolo per singola zona.

Clicca il link per vedere un'immagine esplicativa
Risultati_PortataAriaNAT.jpg

User_571262

User_571262 2015-01-22 18:03:53


Gentilissimo.
Mi trovo nella situazione in cui la mia UTA ha una portata di immissione molto inferiore di quella di riferimento. Inserendo l'UTA in un ambiente non residenziale mi accade che il rendimento globale mi aumenta di 0,02 e, soprattutto, a parità di Epi invol, il Epi globale mi si riduce drasticamente. Da 59 kWh mc a 43. Dai dati vedo che quello che cambia drasticamente è che le dispersioni per ventilazione (Qve) mi si riducono a un terzo. Pertanto mi accade che aggiungendo l'UTA anche se è molto sottodimensionata (con immissione neutra) Lindice globale invernale mi si riduce drasticamente.
Come è possibile?
Grazie

Antonio

Antonio 2015-01-23 15:20:31


Gentilissimo.
Mi trovo nella situazione in cui la mia UTA ha una portata di immissione molto inferiore di quella di riferimento. Inserendo l'UTA in un ambiente non residenziale mi accade che il rendimento globale mi aumenta di 0,02 e, soprattutto, a parità di Epi invol, il Epi globale mi si riduce drasticamente. Da 59 kWh mc a 43. Dai dati vedo che quello che cambia drasticamente è che le dispersioni per ventilazione (Qve) mi si riducono a un terzo. Pertanto mi accade che aggiungendo l'UTA anche se è molto sottodimensionata (con immissione neutra) Lindice globale invernale mi si riduce drasticamente.
Come è possibile?
Grazie
User_571262


L'adozione di una UTA così come indicato non deve comportare modifiche al valore dell'EPi,invol ma correttamente, essendo un contributo che agisce sul valore di ventilazione reale determina, proporzionalmente al suo peso nel calcolo, modifiche all'EPi.

User_228237

User_228237 2015-02-11 22:47:16


Ho un impianto costituito da una pompa di calore geotermica abbinata a due zone con terminali soffitto radiante e pavimento radiante. Ho aggiunto una ventilazione meccanica con portata richiesta per la ventilazione naturale, in diversi modi solo ventilazione oppure ventilazione riscaldata con recupero di calore 0.8 e 0.01.
Domanda perché con o senza recupero la Qp non cambia?
Perché la somma delle portate d'aria per le singole zone è diversa dalla portata d'aria dell'EOdc?

Grazie

Antonio

Antonio 2015-02-17 10:39:55


Ho un impianto costituito da una pompa di calore geotermica abbinata a due zone con terminali soffitto radiante e pavimento radiante. Ho aggiunto una ventilazione meccanica con portata richiesta per la ventilazione naturale, in diversi modi solo ventilazione oppure ventilazione riscaldata con recupero di calore 0.8 e 0.01.
Domanda perché con o senza recupero la Qp non cambia?
Perché la somma delle portate d'aria per le singole zone è diversa dalla portata d'aria dell'EOdc?

Grazie
User_228237


Il valore del Carico termico di Progetto (variabile Qp) è indipendente dall'impianto. Esso tiene conto, per la componente "ventilazione", del valore ad essa associato nel campo "Ricambi Aria" della sezione "Ventilazione per il calcolo della POTENZA" (pagina Ventilazione della Struttura della Zona).

Le portate d'aria connesse alle singole Zone contemplano i soli ricambi d'aria necessaria garantire il confort abitativo mentre nel caso dell'EOdC viene tenuta in conto anche l'efficienza della ventilazione.

User_303133

User_303133 2015-03-20 16:45:37


Salve, io ho inserito delle bocchette di ingresso aria igroregolabili una per ogni infisso, con una portata di aria di 45 mc/h ognuna, e un sistema di estrazione igroregolabile per il ricircolo dell'aria composto da un piccolo motore elettrico da 10w. E' corretto inserire l'impianto nel modo specificato negli allegati? In questo caso si parla di ventilazione meccanica e naturale o solo meccanica? Grazie 114388_1426866373_ventilazione_1.jpg 114388_1426866389_ventilazione.jpg

Antonio

Antonio 2015-03-25 15:18:00


Salve, io ho inserito delle bocchette di ingresso aria igroregolabili una per ogni infisso, con una portata di aria di 45 mc/h ognuna, e un sistema di estrazione igroregolabile per il ricircolo dell'aria composto da un piccolo motore elettrico da 10w. E' corretto inserire l'impianto nel modo specificato negli allegati? In questo caso si parla di ventilazione meccanica e naturale o solo meccanica? Grazie
User_303133


Premetto che i consumi connessi alla "regolazione igrometrica" al momento ancora non sono contemplati in norma che, invece, tratta i soli consumi di energia per umidificazione e/o deumidificazione.

Non è chiaro come esattamente funzioni l'impianto in questione ma in base alla descrizione fornita sembrerebbe trattarsi di "sola ventilazione meccanica".

User_676072

User_676072 2017-11-17 10:13:18


Buongiorno,
mi inserisco nella discussione, in un piccolo negozio ho un impianto ad espansione diretta tre attacchi e un piccolo recuperatore di calore, il problema si presenta quando inserisco nella centrale termica la ventilazione meccanica controllata perchè i rendimenti medi stagionali degli impianti di raffrescamento e riscaldamento non tornano mentre senza si.
Perchè?

Antonio

Antonio 2017-11-17 10:31:31


Buongiorno,
mi inserisco nella discussione, in un piccolo negozio ho un impianto ad espansione diretta tre attacchi e un piccolo recuperatore di calore, il problema si presenta quando inserisco nella centrale termica la ventilazione meccanica controllata perchè i rendimenti medi stagionali degli impianti di raffrescamento e riscaldamento non tornano mentre senza si.
Perchè?
User_676072

Generalmente, condizioni del genere si verificano quando l'azione del recuperatore fa sì che il carico termico che grava sulla machcina si riduce sensibilmente e la machcina diventa sovradimensionata e costretta a funzionare a bassi regimi (e conseguentemente con consumi elevati per produrre poco).